Asunto (2h) haettavana Taiteilijatalo Ars Longassa

Taiteilijatalo Ars Longassa Helsingin Kalasatamassa on vapautumassa asunto A52.
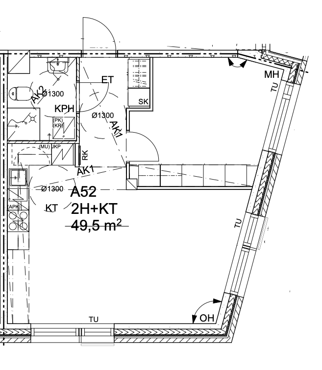
●        2h + k, pinta-ala 49,5m2
●        vuokra 908,30 €/kk
●        sijainti: 7. kerros, kulmahuoneisto
●        vapautuu 1.6.2026
●        vakuus 1kk vuokra

Taiteilijatalo Ars Longa on tarkoitettu 55-vuotta täyttäneille kuvataiteen, taideteollisuuden ja kirjallisuuden ammattilaisille. Kiinteistö on savuton. Lemmikkieläimet sallitaan. Kohteen vuokra määräytyy omakustannusperiaatteella, vuokran tarkistus kerran vuodessa kiinteistöyhtiön hallituksen päätöksen mukaisesti. Asukasvalinnassa noudatetaan ARA-ohjeistusta.

Ars Longan vuokralaisten käytössä on runsaasti yhteiskäyttötiloja: kuntosali, tanssisali, kattopuutarha, sauna, pesutupa sekä iso kokous-/juhlatila hyvin varustetulla keittiöllä. Yhteistilojen käyttö on maksutonta. Ars Longassa on myös asukkaiden yhteistoimintaa, mm. oma galleria ja puutarhanhoitoa. Kauppakeskus Redi ja Kalasataman hyvinvointikeskus sijaitsevat taiteilijatalon välittömässä läheisyydessä.

Tarkemmat hakuohjeet sekä linkki hakemuslomakkeelle löytyvät osoitteesta: https://arslongatalo.fi/asukkaaksi/ 
 

Hakuaika päättyy keskiviikkona 20.5. klo 17:00. Valitse hakemuslomakkeella kaikki sellaiset asuntotyypit, joista olet kiinnostunut. Hakemus on voimassa vuoden ja hakijalle voidaan tarjota myös muita asuntoja hakemuksen voimassaoloaikana.

Kohteessa ei järjestetä julkista näyttöä. Asuntotarjouksen saaja voi tutustua asuntoon ennen vuokrasopimuksen allekirjoittamista.